MÜNCHEN – MILBERTSHOFEN I AM HART
Puristisch – Großzügig – Hochwertig
Sonnige DHH mit gepflegtem Garten in ruhiger, zentraler Lage
| Objekt-Nr.: | VM-2118 |
| Baujahr: | ca. 2012 |
| Wohnfläche: | ca. 178,87 m2 |
| Wohn-/Nutzfläche: | ca. 267,61 m2 |
| Garten: | ca. 550,00 m2 |
| Zimmer: | 5 |
| Badezimmer | 1 mit Fenster |
| Separates WC: | 1 |
| Heizung: | Fußbodenheizung I Gas I Solar |
| Energie-Kennwert: | 47,9 kWh (m2a) I A |
| Garage: | 1 |
| Stellplatz: | 1 |
| Kaltmiete: | vermietet |
Idyllisch, ruhig, umgeben von viel Grün und dennoch mitten in der Stadt liegt die hier angebotene neuwertige DHH im begehrten Stadtteil Milbertshofen / Am Hart.
Grundriss & Ausstattung
Die DHH vereint einen zeitgemäßen Grundriss mit einem klaren, puristischen Ambiente, das die Großzügigkeit dieses Hauses noch unterstreicht.
Ein erstes, repräsentatives Highlight ist sicher der Wohn-Essbereich mit offener Küche auf ca. 56,31 m², der das helle und sonnige EG prägt. Lichtgraue, großformatige Feinsteinzeug-Fliesen, bodentiefe Terrassentüren und Fenster zu allen Himmelsrichtungen geben den Blick frei in den wunderschön bepflanzten, geschützten Garten und lassen den Raum strahlen.
Die hochwertige Einbauküche mit Kochinsel ist mit Markengeräten voll ausgestattet und trägt mit ihren weißen Glasfronten und der dunklen Granit-Arbeitsplatte zum Eindruck bei.
In der kalten Jahreszeit sorgt ein zu drei Seiten offener Kamin vor einer lebendigen Natursteinwand für zusätzliches Wohlgefühl.
Integrierte Downlights tauchen den gesamten Bereich am Abend in stimmungsvolles Licht.
Vom Wohn-Essbereich gelangen Sie auf die ca. 68,00 m² große Terrasse und können von hier aus den Garten mit Obstbäumen und Ziersträuchern genießen.
Diele und ein WC mit Tageslicht machen das EG komplett.
Über eine edle, 2-fach lackierte Holztreppe gelangen Sie ins OG. Hier sorgen teilweise Dachschrägen für ein besonders heimeliges Ambiente. Dabei wurden auch die architektonischen Möglichkeiten eines Dachgeschosses mit beeindruckenden Raumhöhen bestens ausgenutzt.
Viel Weiß und hochwertiges Laminat in einem warmen Kirsch-Ton bestimmen auf dieser Ebene das Ambiente. Im OG sind zwei fast gleich große Schlafzimmer angeordnet. Eines davon ist verbunden mit einer Ankleide ensuite.
Ein Luxus an Raumgefühl ist das mit ca. 12,27 m² äußerst großzügige Badezimmer. Ein Doppel-Waschtisch mit beleuchtbarem Spiegel über die gesamte Breite, eine eingelassene Partner-Badewanne und die Walk-in Dusche mit Rainshower machen das Badezimmer zu einer Wellness-Oase. Viel Sonne und Licht bekommt der Raum über ein großflächiges Dachfenster, das bequem elektrisch zu öffnen und auch zu verschatten ist. Die Sanitärkeramik inkl. WC ist von Villeroy & Boch oder Vigour. Es wurden ausschließlich Marken-Armaturen verbaut. Hochwertige, glasierte Fliesen in Holzoptik Eiche gekalkt runden den positiven Eindruck ab.
Ein Abstellraum (ggf. auch als zusätzliche begehbare Ankleide nutzbar) rundet das Raumangebot auf dieser Etage ab.
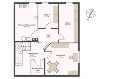
Über die wunderschöne Holztreppe mit ihrem minimalistischen Geländer und Handlauf gelangen Sie ins UG. Hier finden Sie einen Hobbyraum mit Tageslicht in Wohnraum-Qualität und neben einem ebenfalls großzügigen Hauswirtschaftsraum mit allen Anschlüssen zwei weitere gepflegte und gut nutzbare Räume.
Sonstiges
Im gesamten Haus, auch im UG, ist eine moderne und effiziente Fußbodenheizung mit Einzelraumsteuerung verlegt. Für die Warmwasser-Bereitung werden Solarpanels genutzt. Der hervorragende Energiewert spricht für sich.
Fußbodenheizung, Dachflächenfenster und Jalousien werden über ein BUS-System gesteuert.
Dem Baujahr entsprechend sind hochwertige und pflegeleichte Kunststoff-Fenster mit Doppelverglasung verbaut.
Von diesem Garten-Idyll aus ist die U-Bahn-Haltestelle „Am Hart“ in wenigen Minuten bequem zu Fuß zu erreichen.
Mit verschiedenen Schulen in der näheren Umgebung, Einkaufsgelegenheiten und der Nähe zu Schwabing und zur Innenstadt ist die Infrastruktur sehr gut.
Gleiches gilt für die Verkehrsanbindung über den Frankfurter Ring und damit an fast jeden Punkt in der und um die Stadt sowie das Autobahnnetz rund um München.
... aber vielleicht wollen Sie ja gar nicht so viel weg und genießen viel lieber Ihr Haus und den wunderschönen Garten?
Ich bin für Sie da.
T 089|272 99 660
M 0179|100 60 13
Auch auf der Suche?
Dann teilen Sie mir hier bitte Ihren Immobilienwunsch ganz einfach mit.
